Denah Rumah minimalis type 45 adalah type rumah yang cukup banyak peminatnya selain dari type 36. Rumah type 45 yang memiliki ukuran luas bangunan sekitar 45 m2 dengan panjang dan lebar bangunan yang menyesuaikan.
Untuk mendesain rumah dengan type 45, tentu lebih sedikit lebih fleksibel di bandingkan dengan rumah yang bertype lebih kecil seperti type 36 atau type 21. Dengan ukuran yang tidak terlalu kecil, memberikan kepada peminatnya untuk lebih bisa mengeksplor berbagai desain ruang rumah yang akan di bangun.
Untuk mendesain rumah dengan type 45, tentu lebih sedikit lebih fleksibel di bandingkan dengan rumah yang bertype lebih kecil seperti type 36 atau type 21. Dengan ukuran yang tidak terlalu kecil, memberikan kepada peminatnya untuk lebih bisa mengeksplor berbagai desain ruang rumah yang akan di bangun.
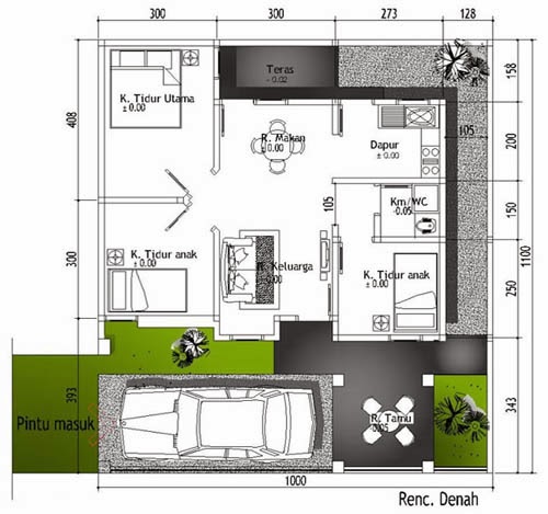
Desain denah atau sketsa rumah minimalis impian type 45, untuk tata ruang dalam rumah, hampir sama dengan rumah type 36, anda bisa membuat 2 buah kamar tidur, dengan satu kamar tidur utama dan satu kamar tidur anak.
Untuk kamar tidur utama mungkin anda bisa menggunakan ukuran sekitar kurang lebih 3 meter x 3 meter, sedangkan untuk kamar tidur anak bisa lebih sedikit kecil sekitar ukuran 2,75 m x 3 m.
Untuk kamar tidur utama mungkin anda bisa menggunakan ukuran sekitar kurang lebih 3 meter x 3 meter, sedangkan untuk kamar tidur anak bisa lebih sedikit kecil sekitar ukuran 2,75 m x 3 m.
Uuntuk memberikan kesan yang lebih luas dalam rumah, anda bisa menggabungkan antara ruang tamu, ruang keluarga dan ruang makan menjadi satu ruangan, ataupun dengan pembatas semu, seperti kursi atau lemari. Jangan menggunakan batas permanen seperti tembok untuk membedakan antar ruang tersebut, karena hal ini akan semakin mempersempit dalam rumah anda nantinya.
Berbagai posisi ruang kamar tidur, ruang makan, ruang keluarga, ataupun lainnya, anda tinggal menyesuaikan dengan posisi lahan ataupun sesuai dengan selera anda. Jika lahan yang anda miliki cukup luas, anda bisa membuat carport yang lebih panjang dan sedikit luas. Tambahkan sebuah taman pada halaman depan dan halaman belakang akan membuat semakin cantik dan teduh suasana rumah yang anda impikan.
Denah atau sketsa Rumah Minimalis Impian type 45, kami sajikan di bawah ini, sahabat bisa melihat-lihat sesuai dengan selera dan luas lahan yang di miliki, sahabat juga bisa melihat berbagai posisi dan pembagian ruang dalam rumah, tentu hal ini akan sangat membantu bagi sahabat.
Semoga berbagai Denah Rumah Minimalis Impian type 45 di atas bisa memberikan inspirasi yang mencerahkan dan memberikan sedikit motivasi bagi sahabat yang sedang merencanakan rumah impian. anda juga bisa merancang desain rumah minimalis 4 kamar.
Salam suskes dan salam bahagia untuk sahabat…



















